| 地址 | 東京都杉並區西荻北1-16-13 | ||
| 價格 | 人民幣:845萬 | 租金回報 | 6.05%(預計) |
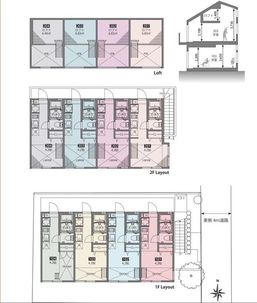
| 建筑年代 | 2019年3月 | 建筑結構 | 木造2層 |
| 實際面積 | 123.38㎡ | 土地面積 | 128.65平方米 |
| 陽臺面積 | 車庫面積 | ||
| 總戶數 | 全8戶 | 所在層 | 1-2層 |
| 房型 | 1R+BF*4室 1R+LOFT*4室 | 朝向 | 南北 |
| 租賃情況 | 滿室出租中 | 租金 | 799.2萬日元/年 |
| 管理費 | 修繕費 | ||
| 建蔽率 | 50% | 容積率 | 100% |
| 用途地域 | 第一種低層住居專用地域 | 土地權利 | 永久產權 |
| 交通 | JR中央線·總武線西荻窪站徒步10分鐘 | ||
公寓樓于2019年3月建成,永久產權。售價是1.32億日元,約合人民幣845萬,貸款首付約400萬人民幣。公寓土地面積:128.65㎡,建筑面積:123.38㎡,全8戶,全帶LOFT,不加LOFT單間15㎡以上,東側臨4m寬公路。通行方便,JR総武中央線、東西線西荻窪車站徒步10分鐘,總武線,東西線都是上班族很有人氣的線路,車站距離中野站10分鐘,新宿站16分鐘,高田馬場16分鐘,東京站28分鐘,通勤通學方便。距離超市,百元店走路2分鐘,從車站到物件路過商店街,購物方便。物件南北通透,采光良好,適宜居住。全款表面回報率6%,貸款后實際回報率8%以上,租金可覆蓋還款,適合資產配置,長期收益客戶。
1. 地理與基本信息:杉并區位于東京都西北部,北鄰練馬區,東接中野區,南靠澀谷區,西毗三鷹市。面積約34.06平方公里,2023年人口約57萬,作為寧靜的住宅區深受歡迎。這里落語、電影等文化活動豐富,被譽為“彌漫著文化氣息的區域”。
2. 主要區域及其特色
• 高圓寺(Kōenji):高圓寺站有JR中央線和總武線經過,商業區域繁華熱鬧。高圓寺阿波舞是每年夏天舉辦的日本最大規模的盆踴活動。這里的個性商店街分布著古著店、咖啡館、雜貨店等,能讓人感受到下町風情。
• 阿佐谷(Asagaya):阿佐谷站有中央線和東京地鐵丸之內線通過。阿佐谷動漫街匯聚了眾多動漫相關店鋪。阿佐谷珠算紀念館可讓人了解算盤的歷史。
• 荻洼(Ogikubo):荻洼站是中央線和丸之內線的站點,商業設施完備。荻洼銀座是深受當地居民喜愛的商店街。桃園川保留了自然景觀,是散步的絕佳去處。
• 和田(Wada):善福寺公園面積廣闊,內有鳥類園和美術館,可盡情享受自然之美。
• 永福町(Eifukuchō):永福町站有京王井之頭線經過,是寧靜的住宅區。
3. 文化與歷史:杉并區在江戶時代曾是農村地區,明治之后逐漸走向城市化。杉并區立歷史民俗資料館可以讓人們了解該區的歷史和文化。
4. 觀光景點:丸山商店街是位于高圓寺一角的復古商店街。善福寺川綠地是自然豐富的散步路線。杉并區立美術館展示當地的藝術作品。
5. 交通出行:鐵路有JR中央線、總武線、東京地鐵丸之內線、京王井之頭線等。主要車站有高圓寺站、阿佐谷站、荻洼站、永福町站等。區內出行乘坐巴士很方便,還有社區巴士“杉並區コミュニティバスすぎ丸”運行。
6. 生活環境:教育資源豐富,從幼兒園到高中的教育機構齊全,早稻田大學部分校區也在此。醫療設施完備,有國際醫療福祉大學三田醫院、杉并區立綜合醫院等。商業方面,各區域都有商店街和大型商業設施,生活便利性高。
7. 活動與節慶:高圓寺阿波舞是日本最大規模的盆踴活動,吸引了眾多國內外游客。杉并區民節是當地居民相聚的大型活動。
8. 現代的杉并區:杉并區作為住宅區備受青睞,尤其受到有子女家庭的支持。文化活動豐富,落語、電影、音樂等活動頻繁舉辦。
總結:杉并區是自然與城市功能和諧平衡的區域,充滿文化氣息。高圓寺和阿佐谷的下町風情、荻洼的寧靜氛圍等,展現出多樣的面貌,無論是居住還是游覽都極具吸引力。如果您想了解特定區域或觀光景點的更多信息,歡迎告知。
您會在一個工作日內得到置業顧問的聯絡




