| 地址 | 東京都清瀨市 | ||
| 價格 | 人民幣:650萬 | 租金回報 | 7% |
| 建筑年代 | 1988年12月 | 建筑結構 | 鋼筋混凝土造 |
| 實際面積 | 414.36㎡ | 土地面積 | 198.37㎡ |
| 陽臺面積 | / | 車庫面積 | / |
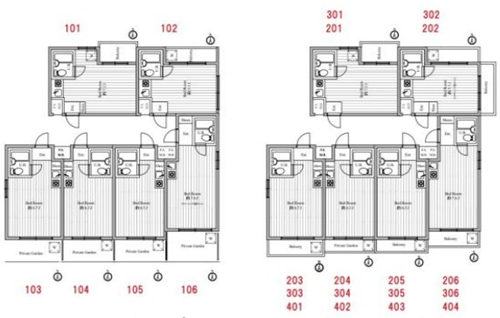
| 總戶數 | 22戶 | 所在層 | 1-4層 |
| 房型 | 住居 | 朝向 | / |
| 租賃情況 | 目前出租中(19/22戶) | 租金 | 約9,168,000日元/年/滿室 |
| 管理費 | / | 修繕費 | / |
| 建蔽率 | 60% | 容積率 | 200% |
| 用途地域 | 第一種中高層住居專用地域 | 土地權利 | 永久產權 |
| 交通 | 西武池袋線【清瀨】站 | ||
1988年12月建成,永久產權,符合新抗震標準。位于東京都清瀨市,西武池袋線【清瀨】站可利用,可直達池袋。公寓樓鋼筋混凝土造4層,西北側寬約9m公道,周邊有便利店、超市等日常購物設施,總戶數22戶,室內空調、衛浴設備等齊全,目前部分出租中,詳情歡迎咨詢。
一、地理與基本信息
1. 位置:地處東京都西部的多摩地區,北鄰埼玉縣新座市,東接東久留米市,南靠小平市,西連東村山市。
2. 面積:約10.18平方公里。
3. 人口:大約7萬人(截至2023年的估算),是一座規模相對緊湊的住宅城市。
4. 特點:綠意盎然的自然環境和完善的教育設施是其魅力所在。
二、主要區域及其特點
1. 清瀨(Kiyose)
• 清瀨站:西武池袋線經過此地,是城市的中心地帶,車站周邊商業設施密集。
• 清瀨市政府(清瀬市役所):是城市的行政中心。
2. 秋津(Akiitsu)
• 秋津站:西武池袋線途經此處,作為新興住宅區不斷發展。
• 秋津公園:自然環境優美,配備了豐富的兒童游樂場所和運動設施。
三、文化與歷史
1. 清瀨市由江戶時代延續下來的農村地區發展而來。
2. 清瀨市鄉土資料館:通過這個設施,可以深入了解清瀨市的歷史和文化。
四、觀光景點
1. 多摩湖(村山貯水池):這是一個風景優美的水邊景點,人們可以在此散步或騎自行車,享受美好時光。
2. 清瀨中央公園:這是一座廣場和體育設施完備的公園。
3. 清瀨神社:這是一座歷史悠久的神社,深受當地居民的喜愛。
五、交通
1. 鐵路:西武池袋線是主要的交通線路。
2. 主要站點:包括清瀨站、秋津站等。
3. 公交:乘坐公交在市內出行十分便利,尤其是從清瀨站和秋津站出發的公交線路非常完善。
六、生活環境
1. 教育:從幼兒園到高中,教育機構極為完備。特別是清瀨市立第一中學、東京學藝大學附屬清瀨中學等學校備受好評。
2. 醫療:清瀨市醫師會醫院、東京女子醫科大學附屬青山醫院等醫療設施齊全。
3. 商業:清瀨站周邊有商店街和超市,日常生活所需物品一應俱全。
七、活動與節日
1. 清瀨市民節(清瀬市民まつり):這是每年都會舉辦的大型市民活動。
2. 清瀨夏季節(清瀬夏まつり):作為夏日的傳統活動,吸引了眾多民眾前來參與。
八、現代的清瀨市
1. 清瀨市自然環境優越,尤其受到有孩子家庭的青睞。
2. 交通便利,可便捷到達東京市中心,生活便利性高。
3. 教育設施和公園等配套完善,被認為是一座宜居城市。
總結:清瀨市是一個自然與城市和諧平衡的區域。清瀨站周邊的商業設施,以及各處寧靜的住宅區獨具特色,生活所需設施完備。交通便利,前往東京市中心方便,深受重視教育環境的人們喜愛。如果您想進一步了解特定區域或觀光景點的詳細信息,請隨時告知。
您會在一個工作日內得到置業顧問的聯絡




