| 地址 | 東京都葛飾區 | ||
| 價格 | 人民幣:840萬 | 租金回報 | 5.15% |
| 建筑年代 | 2018年3月 | 建筑結構 | 木造 |
| 實際面積 | 221.54㎡ | 土地面積 | 190.33㎡ |
| 陽臺面積 | / | 車庫面積 | / |
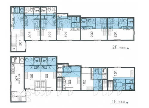
| 總戶數 | 12戶 | 所在層 | 1-2層 |
| 房型 | 1室(11戶+LOFT) | 朝向 | / |
| 租賃情況 | 目前滿室出租 | 租金 | 約865.2萬日元/年 |
| 管理費 | / | 修繕費 | / |
| 建蔽率 | 60% | 容積率 | 200% |
| 用途地域 | 第一種中高層住居專用地域 | 土地權利 | 永久產權 |
| 交通 | ①京成電鐵本線【京成小巖】站 ②北總鐵道【新柴又】站 ③京成電鐵本線【京成高砂】站 | ||
公寓樓2018年3月建成,永久產權,符合新抗震標準。位于東京都葛飾區,京成電鐵本線、北總鐵道2線路可以利用,近鄰【京成小巖】站、【新柴又】站、【京成高砂】站。周邊散布著超市、便利店、藥妝店等日常生活設施。公寓樓木造2層,南側約6m公道,設置門禁、快遞柜、Wi-Fi、自行車車場等,總戶數12戶,1室戶型(19.30㎡~28.23㎡),其中11戶附帶LOFT,全房間采光良好,室內空調、衛浴設備等齊全,目前滿室出租中,也可用于事務所,詳情歡迎咨詢。海外客戶可以申請日本銀行貸款購房,目前有兩種方式:1.需要在日本設立公司,以法人名義購買,貸款額度約60-70%、還款周期25-35年、貸款利率1.5%起。2.個人名義購買,海外客戶可以申請日本個人抵押貸款購房,不需要設立公司,貸款額度約50-60%,還款周期15-25年,貸款年齡65歲以內,貸款額度不能低于2000萬日元,貸款利率2.7%起。
1. 地理與基本信息:葛飾區地處東京都東部,北鄰足立區,西接荒川區,南靠江戶川區,東與埼玉縣川口市和三鄉市接壤。面積約34.80平方公里,2023年人口約45萬。這里既有下町的獨特氛圍,也有新開發的區域。葛飾區是漫畫家手冢治蟲的出生地,設有“手冢治蟲紀念館”,是充滿文化氣息的區域。
2. 主要區域及其特色
• 龜有(Kameari):龜有站有JR常磐線經過,因是電影《寅次郎的故事》的拍攝地而聞名。寅先生紀念館是為紀念《寅次郎的故事》主人公車寅次郎(寅先生)而設立的場館。龜有銀座商店街深受當地居民喜愛,受電影影響,也吸引了許多游客。
• 青砥(Aoto):青砥站有京成電鐵本線經過,是商業設施集中的區域。青砥神社深受當地居民喜愛。
• 金町(Kanegafuchi):金町站有京成本線經過,商業區域和住宅區交錯分布。金町銀座是支撐當地居民生活的商店街。
• 新小巖(Shin-Koiwa):新小巖站有總武本線經過,商業設施和住宅眾多。新小巖公園自然環境優美,四季都可盡情享受。
3. 文化與歷史:葛飾區自江戶時代起發展,尤其是龜有曾作為宿場町繁榮一時。葛飾區鄉土與天文博物館可以讓人們了解該區的歷史和天文知識。
4. 觀光景點:手冢治蟲紀念館介紹了被稱為“漫畫之神”的手冢治蟲的作品和生平。水元公園面積在東京都內數一數二,可享受自然和運動。柴又帝釋天(京成大正寺)是熱門觀光地,也是電影《寅次郎的故事》的拍攝地。
5. 交通出行:鐵路有JR常磐線、總武本線、京成電鐵本線等。主要車站有龜有站、青砥站、金町站、新小巖站等。區內有方便出行的公交線路。
6. 生活環境:教育資源豐富,從幼兒園到高中的教育機構齊全,有東京電機大學、東京成德大學等高校。醫療設施完備,有葛飾紅十字醫院、東京都立葛飾康復醫院等。商業方面,各區域都有商店街和超市,生活便利性高。
7. 活動與節慶:柴又1000人舞是當地的夏日祭典,熱鬧非凡。葛飾區民節是當地居民參與的大型活動。
8. 現代的葛飾區:葛飾區在保留了下町風情的同時,通過再開發增加了新的商業設施和住宅。這里文化設施和活動豐富,對居民和游客都頗具吸引力。
總結:葛飾區是下町的溫暖氛圍與豐富文化相融合的區域。特別是受《寅次郎的故事》影響,龜有在全國聞名,手冢治蟲紀念館等成為備受關注的文化景點。自然環境優美的公園和完備的商業設施,營造了宜居的生活環境。如果您想了解特定區域或觀光景點的更多信息,歡迎告知。
您會在一個工作日內得到置業顧問的聯絡




