| 地址 | 東京港區南青山4 | ||
| 價格 | 人民幣:1965萬 | 租金回報 | / |
| 建筑年代 | 2017年8月 | 建筑結構 | 鋼筋混凝土 |
| 實際面積 | 83.47平米 | 土地面積 | 1041.1平米 |
| 陽臺面積 | 7.9平米 | 車庫面積 | / |
| 總戶數 | 25戶 | 所在層 | 5層 |
| 房型 | 3室 | 朝向 | 南向 |
| 租賃情況 | 空室 | 租金 | / |
| 管理費 | 39230日元/月 | 修繕費 | 15860日元/月 |
| 建蔽率 | / | 容積率 | / |
| 用途地域 | 第二種中高層住宅專用區域 | 土地權利 | 永久產權 |
| 交通 | ? 東京地鐵半藏門線“表參道”? 東京地鐵千代田線“表參道”站 | ||
一、基本信息
1. 名稱:Geo南青山
2. 地址:東京港區南青山4-15-3
3. 最近車站:
• 東京地鐵半藏門線“表參道”站,步行8分鐘可達
• 東京地鐵千代田線“表參道”站,步行8分鐘可達
4. 土地權利:所有權
5. 占地面積:1,041.1平方米
6. 土地權利份額:8.347/182.344
7. 用途區域:第二種中高層住宅專用區域
二、建筑詳情
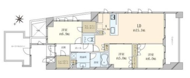
1. 專有面積:83.47平方米(25.24坪)
2. 陽臺面積:7.9平方米
3. 屋頂陽臺面積:10.11平方米
4. 戶型:3LDK(客廳、餐廳、廚房、三間臥室)+步入式衣柜(WIC)+鞋柜(SIC)
5. 結構/戶數:鋼筋混凝土(RC)結構,共25戶
6. 樓層:地下1層,地上5層
7. 是否允許飼養寵物:是
8. 朝向:北、東、南三個方向角,采光通風良好
9. 竣工時間:2017年8月
10. 開發商:阪急不動產株式會社
11. 房產類型:二手公寓
三、物業管理
1. 管理形式:全部委托
2. 管理人:日勤
3. 管理公司:阪急阪神不動產住宅支持株式會社
4. 費用明細:
• 管理費:每月39,230日元
• 修繕公積金:每月15,860日元
• 其他費用:每月6,550日元
• 總計:每月61,640日元
四、設施配備
1. 停車場:有(位于小區內)
2. 電梯:有
3. 自動鎖:有
五、房屋現狀及交易信息
1. 現狀:空房
2. 交付方式:面談協商
3. 特別說明:若圖紙與實際情況有差異,以實際情況為準。
六、特色亮點
1. 交通出行:可便捷使用兩條以上地鐵線路,輕松暢達東京各處。
2. 生活設施:
• 廚衛設施齊全,配備浴室干燥機、對開式廚房、食器洗干一體機以及凈水器,滿足日常所需。
• 屋內設有電梯,方便上下樓;還配備步入式衣柜(WIC)和鞋柜(SIC),增加收納空間。
3. 居住體驗:
• 頂層角戶設計,無樓上住戶打擾,安靜私密。3LDK經典布局,室內空間寬敞,浴室面積超過1坪 。
• 三面采光,南西朝向,通風效果極佳,視野開闊。
• 擁有7.9平方米的陽臺和10.11平方米的屋頂陽臺,站在屋頂陽臺可將東京鐵塔和六本木建筑群盡收眼底。
4. 寵物友好:允許飼養寵物,為寵物愛好者提供便利。
七、價格信息
位于5層的頂層房源,售價41,800萬日元(含稅)
1. 地理與基本信息:港區地處東京都中央,東臨東京灣,北接千代田區與中央區,東鄰江東區,西與澀谷區和品川區接壤。全區面積約20.37平方公里,截至2023年,人口約26萬,其中外國居民眾多,國際化氛圍濃厚。這里高樓林立,現代建筑密集,是東京的核心商務區,同時也保留了豐富的歷史遺跡和綠地,展現出獨特的多元性。
2. 主要區域及其特色
• 六本木(Roppongi):國際化氛圍濃厚,吸引了大量外國游客和駐外人員。著名景點包括六本木之丘(含觀景臺和美術館)、東京中城和森美術館,夜生活豐富,酒吧和俱樂部云集。
• 麻布(Azabu):以高級住宅區聞名,眾多大使館坐落于此。麻布十番商店街是當地居民和游客的熱門打卡地,傳統店鋪與現代咖啡館和諧共存。
• 赤坂(Akasaka):政治和商業中心,靠近國會議事堂和首相官邸。擁有赤坂Sakas(TBS廣播中心)和多家高級酒店,餐飲選擇豐富。
• 臺場(Odaiba):東京灣上的人工島,人氣觀光勝地。著名景點有彩虹大橋、臺場購物廣場(含實物大高達像)、臺場海濱公園和teamLab無界美術館,購物和娛樂設施齊全。
• 品川(Shinagawa):新干線經停站品川站所在地,交通樞紐,同時也是重要的商業區,高樓林立。
• 白金?高輪(Shirokane/Takanawa):高級住宅區,環境靜謐,分布著自然教育園和美術館等文化場所。
• 汐留?新橋(Shiodome/Shimbashi):汐留地區再開發成果顯著,辦公樓和酒店密集;新橋則以上班族聚集區著稱,餐飲店眾多。
3. 觀光景點與文化:港區擁有眾多知名景點,吸引著來自國內外的游客。東京塔是港區的象征,觀景臺可俯瞰城市美景;芝公園和增上寺緊鄰東京塔,歷史寺院與自然景觀相得益彰;愛宕神社以“出世之石段”聞名;teamLab無界美術館(位于臺場)以數字藝術享譽全球;六本木之丘觀景臺則是欣賞東京夜景和富士山的絕佳地點。
4. 交通便利:港區交通網絡發達,方便前往東京市內及周邊地區。地鐵線路包括東京地鐵(銀座線、丸之內線、日比谷線等)、都營地鐵、JR山手線和百合海鷗號等。主要車站有品川站、新橋站、浜松町站、六本木站、麻布十番站和臺場站等。此外,前往羽田機場和成田機場也十分便捷,可乘坐單軌電車和機場巴士。
5. 經濟與商業:作為日本的代表性商業區,港區匯聚了眾多國內外企業總部。六本木之丘、東京中城和汐留城市中心等辦公樓群是經濟活動的核心地帶,IT、媒體、金融和咨詢等產業尤為發達。
6. 國際化氛圍:港區內設有約90個國家的大使館,國際化氛圍濃厚。外國居民眾多,國際學校和多語言服務設施齊全。在六本木和麻布等區域,英語和其他語言的使用也非常普遍。
7. 生活環境:教育資源豐富,國際學校和知名私立學校眾多,深受有子女家庭的青睞。醫療設施完備,擁有國際醫療福祉大學三田醫院和東京慈惠會醫科大學附屬醫院等高質量醫療機構。綠地公園豐富,如芝公園、有棲川宮紀念公園和自然教育園等,提供親近自然的好去處。然而,由于高級住宅區和觀光景點眾多,港區的房租和物價相對較高。
8. 活動與節慶:麻布十番納涼祭每年夏季舉行,有攤位和表演等活動;東京塔會根據季節和活動進行不同的燈光秀,深受游客喜愛;夏季,臺場還會舉辦盛大的煙花大會。
總結:東京港區融合了商業、觀光、文化和國際化元素,是感受東京都市魅力的絕佳之地。對于游客來說,這里景點豐富多樣;對于居民而言,生活環境優越。不過,由于較高的物價和房租,有意在此居住的人士需提前做好預算規劃。
您會在一個工作日內得到置業顧問的聯絡




