| 地址 | 東京都江戶川區松島4 | ||
| 價格 | 人民幣:232萬 | 租金回報 | / |
| 建筑年代 | 1996年8月 | 建筑結構 | 鋼筋混凝土造 |
| 實際面積 | 63.34㎡ | 土地面積 | / |
| 陽臺面積 | 合計11.4㎡ | 車庫面積 | / |
| 總戶數 | 29戶 | 所在層 | 2層 |
| 房型 | 3室1廳 | 朝向 | / |
| 租賃情況 | / | 租金 | / |
| 管理費 | 12,800日元/月 | 修繕費 | 9,000日元/月 |
| 建蔽率 | / | 容積率 | / |
| 用途地域 | / | 土地權利 | 永久產權 |
| 交通 | JR總武線【新小巖】站徒步8分鐘 | ||
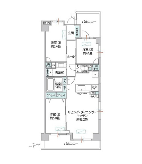
1996年8月建成,永久產權,符合新抗震標準。位于東京都江戶川區,距JR總武線【新小巖】站徒步8分鐘,也有快速停車站,去都心或千葉方向交通良好。穿過車站前的超市和餐飲店林立的商業街,就會有一條幽靜的住宅街,公寓周邊7-11便利店,公園,中小學校等都在步行范圍內,便利的居住環境。公寓設有門禁,物件位于2層,3室1廳,完成室內裝修,更新了生活配套設備,客餐廳兩面采光,采用了開放式廚房,可以看到客廳的狀況,廚房后面的墻面設置了便利的磁鐵板,各居室都有收納,浴室帶換氣烘干器,衛浴獨立。詳情歡迎咨詢。
1. 地理與基本信息:江戶川區地處東京都東部,北鄰葛飾區,西接墨田區、江東區,南瀕東京灣,東與千葉縣市川市和浦安市接壤。面積約49.90平方公里,2023年人口約70萬,是較大的區,有子女的家庭居多。區內江戶川和新川沿岸有眾多公園,自然環境優美。
2. 主要區域及其特色
• 小巖(Koiwa):小巖站有JR總武本線經過,已發展成為商業區。小巖銀座商店街深受當地居民喜愛,充滿活力。
• 船堀(Funabori):船堀站有都營地鐵新宿線經過,住宅和商業設施交錯分布。船堀綠色購物中心是大型商業設施,能滿足日常生活所需。
• 葛西(Kasai):葛西站有東京地鐵東西線經過,自然環境極具吸引力。葛西臨海公園面積廣闊,可進行自然觀察和休閑活動,其中的“葛西臨海水族園”尤其受歡迎。
• 一之江(Ichinoe):一之江站有都營地鐵新宿線經過,周邊是寧靜的住宅區。一之江公園是當地居民的休閑場所,兒童游樂設施完備。
• 瑞江(Mizue):瑞江站有東京地鐵東西線經過,有許多適合家庭居住的住宅。江戶川區立瑞江南公園綠樹成蔭,四季風景各異。
3. 文化與歷史:江戶川區自江戶時代就已存在,當時利用河流發展了交通和產業。江戶川區立江戶川區鄉土博物館可以讓人們了解該區的歷史和文化。
4. 觀光景點:葛西臨海公園是自然與游樂園相結合的地方,舉辦煙花大會時會吸引大量游客。東京迪士尼度假區雖不直接位于江戶川區,但靠近浦安市邊界,常作為觀光據點。江戶川河川敷是騎行和散步的絕佳場所。
5. 交通出行:鐵路有JR總武本線、東京地鐵東西線、都營地鐵新宿線等。主要車站有小巖站、船堀站、葛西站、一之江站、瑞江站等。區內出行乘坐巴士很方便,還有社區巴士“ぐるっとバス”運行。
6. 生活環境:教育資源豐富,從幼兒園到高中的教育機構齊全,尤其有許多適合家庭的學校。醫療設施完備,有江戶川醫院、東京女子醫科大學附屬青山醫院等。商業方面,各區域都有商店街和大型商業設施,生活便利性高。
7. 活動與節慶:江戶川區煙花大會每年夏天舉辦(也有停辦的年份),吸引眾多游客。江戶川區民節是當地居民參與的大型活動。
8. 現代的江戶川區:江戶川區自然環境優越,是深受有子女家庭喜愛的住宅區。再開發不斷推進,新的商業設施和住宅逐漸增多,同時自然環境也得到了重視。
總結:江戶川區是自然與城市和諧相融的區域,公園和綠地眾多,非常適合養育子女。生活便利性高,能感受到下町的溫馨氛圍和社區的凝聚力。此外,由于靠近東京迪士尼度假區,也具有觀光勝地的屬性。如果您想了解特定區域或觀光景點的更多信息,歡迎告知。
您會在一個工作日內得到置業顧問的聯絡




