| 地址 | 東京都江戶川區中葛西1 | ||
| 價格 | 人民幣:337萬 | 租金回報 | / |
| 建筑年代 | 2021年2月 | 建筑結構 | 木造 |
| 實際面積 | 104.10㎡ | 土地面積 | 74.46㎡ |
| 陽臺面積 | / | 車庫面積 | / |
| 總戶數 | / | 所在層 | 1-3 |
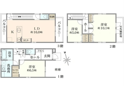
| 房型 | 3室1廳+S+P | 朝向 | / |
| 租賃情況 | / | 租金 | / |
| 管理費 | / | 修繕費 | / |
| 建蔽率 | 60% | 容積率 | 200% |
| 用途地域 | 第一種住居地域 | 土地權利 | 永久產權 |
| 交通 | ①東京メトロ東西線【葛西】站徒步16分鐘 | ||
2021年2月建成,販賣戶數2戶,337萬人民幣~,永久產權,符合新抗震標準。位于東京都江戶川區,距東京メトロ東西線【葛西】站徒步16分鐘,至大手町車站8站距離。附近超市徒步6分鐘,711便利店徒步3分鐘,永旺商場徒步19分鐘,公園徒步5分鐘,區立小學校徒步5分鐘,區立中學校徒步2分鐘。物件木造3層,有車位,充實的生活配套設施,有地暖,廚房配有洗碗機和凈水器,收納豐富,浴室有通風窗,2處衛生間。我們協助海外投資客戶申請日本銀行貸款購房業務,需要在日本設立公司,以法人名義購買,貸款額度約60-70%、還款周期25-35年、貸款利率1.5%起。歡迎咨詢。
1. 地理與基本信息:江戶川區地處東京都東部,北鄰葛飾區,西接墨田區、江東區,南瀕東京灣,東與千葉縣市川市和浦安市接壤。面積約49.90平方公里,2023年人口約70萬,是較大的區,有子女的家庭居多。區內江戶川和新川沿岸有眾多公園,自然環境優美。
2. 主要區域及其特色
• 小巖(Koiwa):小巖站有JR總武本線經過,已發展成為商業區。小巖銀座商店街深受當地居民喜愛,充滿活力。
• 船堀(Funabori):船堀站有都營地鐵新宿線經過,住宅和商業設施交錯分布。船堀綠色購物中心是大型商業設施,能滿足日常生活所需。
• 葛西(Kasai):葛西站有東京地鐵東西線經過,自然環境極具吸引力。葛西臨海公園面積廣闊,可進行自然觀察和休閑活動,其中的“葛西臨海水族園”尤其受歡迎。
• 一之江(Ichinoe):一之江站有都營地鐵新宿線經過,周邊是寧靜的住宅區。一之江公園是當地居民的休閑場所,兒童游樂設施完備。
• 瑞江(Mizue):瑞江站有東京地鐵東西線經過,有許多適合家庭居住的住宅。江戶川區立瑞江南公園綠樹成蔭,四季風景各異。
3. 文化與歷史:江戶川區自江戶時代就已存在,當時利用河流發展了交通和產業。江戶川區立江戶川區鄉土博物館可以讓人們了解該區的歷史和文化。
4. 觀光景點:葛西臨海公園是自然與游樂園相結合的地方,舉辦煙花大會時會吸引大量游客。東京迪士尼度假區雖不直接位于江戶川區,但靠近浦安市邊界,常作為觀光據點。江戶川河川敷是騎行和散步的絕佳場所。
5. 交通出行:鐵路有JR總武本線、東京地鐵東西線、都營地鐵新宿線等。主要車站有小巖站、船堀站、葛西站、一之江站、瑞江站等。區內出行乘坐巴士很方便,還有社區巴士“ぐるっとバス”運行。
6. 生活環境:教育資源豐富,從幼兒園到高中的教育機構齊全,尤其有許多適合家庭的學校。醫療設施完備,有江戶川醫院、東京女子醫科大學附屬青山醫院等。商業方面,各區域都有商店街和大型商業設施,生活便利性高。
7. 活動與節慶:江戶川區煙花大會每年夏天舉辦(也有停辦的年份),吸引眾多游客。江戶川區民節是當地居民參與的大型活動。
8. 現代的江戶川區:江戶川區自然環境優越,是深受有子女家庭喜愛的住宅區。再開發不斷推進,新的商業設施和住宅逐漸增多,同時自然環境也得到了重視。
總結:江戶川區是自然與城市和諧相融的區域,公園和綠地眾多,非常適合養育子女。生活便利性高,能感受到下町的溫馨氛圍和社區的凝聚力。此外,由于靠近東京迪士尼度假區,也具有觀光勝地的屬性。如果您想了解特定區域或觀光景點的更多信息,歡迎告知。
您會在一個工作日內得到置業顧問的聯絡




