| 地址 | 日本長野縣北佐久都輕井澤町 | ||
| 價格 | 人民幣:1876萬 | 租金回報 | / |
| 建筑年代 | 1993年7月 | 建筑結構 | 鋼筋混凝土造 |
| 實際面積 | 1088.63㎡ | 土地面積 | 5,241.00㎡ |
| 陽臺面積 | / | 車庫面積 | / |
| 總戶數 | / | 所在層 | 1-2 |
| 房型 | 11室1廳 | 朝向 | / |
| 租賃情況 | / | 租金 | / |
| 管理費 | / | 修繕費 | / |
| 建蔽率 | 20% | 容積率 | 20% |
| 用途地域 | 第一種低層住居專用地域 | 土地權利 | 永久產權 |
| 交通 | ①しなの鐵道線【中軽井沢】站乘車10分鐘 | ||
林 武振 営業部
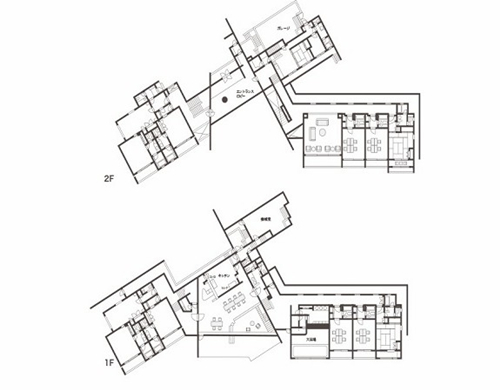
1993年7月建成,位于日本著名的度假勝地長野縣輕井澤。地處輕井澤最具有歷史的別墅區,永久產權,距【中軽井沢】站乘車約10分鐘。從輕井澤車站步行3分鐘有大型折扣店outlet,舊輕井澤的主要街道上有古香古色的店鋪和時尚的飲食店。物件鋼筋混凝土造2層,有數臺停車位,2020年9月完成裝修,墻壁和天花板采用與輕井澤豐富自然環境相呼應的木質設計,擁有商務套房,大浴池和桑拿,并配置了部分家具。這里有著豐富多彩的休閑與工作環境,可以度假,舉行會議,歡迎咨詢。
其他地區 其他
4 地址:日本長野縣北佐久都輕井澤町
交通:①しなの鐵道線【中軽井沢】站乘車10分鐘
您會在一個工作日內得到置業顧問的聯絡




